Al sinds 1933 dé vastgoedspecialist Twee vestigingen in regio Alkmaar Maar liefst 9 certificeringen
Aanbod Terug naar aanbod
HEILOO Haagbeuk 45
€ 1.440,-

75 m²

Wonen

3

Kamers

Verhuurd onder voorbehoud
HEILOO Haagbeuk 45
€ 1.440,- p/m

75 m²

Wonen

3

Kamers

Omschrijving

Bent u op zoek naar een modern (bijna) hagelnieuw drie kamer appartement in een woonomgeving met een groen karakter, lees dan snel verder!

Dit prachtige complex is ontwikkeld in het nieuwbouwplan Zuiderloo. Zodra u het complex uitloopt staat u midden in een groene woonwijk met een dorpskarakter. In Heiloo vindt u uitgestrekte bossen en binnen een kwartier fietsen bereikt u het strand of de binnenstad van Alkmaar.

Heiloo beschikt over diverse voorzieningen. Even boodschappen doen in het gezellige oude centrum of winkelcentrum ’t Loo, ‘s zondags heerlijk een boswandeling maken in het Heilooërbos of een kop koffie drinken bij één van de vele gezellige restaurants die het dorp rijk is. Met de A9 en het station in de nabijheid is het bijna overbodig om te zeggen dat u dus écht alles binnen handbereik hebt!

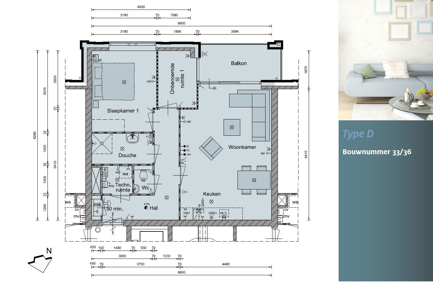
Indeling
Begane grond:
Gezamenlijke entree met deurbellentableau, brievenbussen, toegang tot de bergingen en lift.

Indeling appartement (gelegen op de 1e verdieping):
Entree appartement, hal, toegang tot alle vertrekken.

De ruime en lichte woonkamer heeft een open keuken. De keuken met moderne look is voorzien van diverse inbouwapparatuur (vaatwasmachine, afzuigkap, gas kookplaat, koel/vries combinatie en oven/magnetron combinatie).
Vanuit de woonkamer heeft u toegang tot het balkon, gelegen is op het zuiden.

Het appartement beschikt over een inpandige berging die is voorzien van een opstelling voor de wasmachine/droger. Er zijn twee slaapkamers, de masterbedroom is circa 13 m2 en de tweede slaapkamer is circa 6 m2.
De badkamer is voorzien van een modern metalen douchescherm, spiegelkast en een wastafelmeubel.
Het separaat toilet heeft tevens een fonteintje.

Het appartement beschikt over een inpandige eigen fietsenberging, gelegen op de begane grond van het complex.

Bijzonderheden:
– Huurprijs € 1.440,- per maand exclusief gas/water/elektriciteit en gemeentelijke gebruikersbelastingen;
– Servicekosten per maand € 75,-;
– Waarborgsom € 2.880 ,-;
– De naamplaatjes bij de brievenbus moeten uniform zijn. Verhuurder laat deze voor rekening van huurder vervaardigen en aanbrengen;
– De woning dient door de huurder zelf gestoffeerd te worden;
– Overname: De handbeugels in de badkamer en het toilet, evenals de beugel voor het ophangen van handdoeken, zijn ter overname van de vertrekkende huurder; – Onderhoudsverdeling tussen huurder en verhuurder op basis van het wettelijke besluit kleine herstellingen.

Huur(termijn):
– Aanvaarding per 01-02-2026;
– De huurovereenkomst wordt aangegaan op basis van een ROZ overeenkomst;
– De huurovereenkomst wordt afgesloten voor een periode van minimaal 24 maanden. Tijdens deze periode kan de huurder de huurovereenkomst niet tussentijds opzeggen. Na deze periode loopt de huurovereenkomst voor onbepaalde tijd door en heeft de huurder een opzegtermijn van een kalendermaand;
– 1e huurindexatie op 1 juli 2027.

Inkomenseis:
Belangrijk uitgangspunt voor de beoordeling van een kandidaat huurder is het inkomen.

Als uitgangspunt hanteert verhuurder een inkomenseis van een bruto maand inkomen van de hoofdkostwinner, dat gelijk moet zijn aan 3,5 x de kale huurprijs. Indien de hoofdkostwinner in loondienst is, moet hij/zij een dienstverband voor onbepaalde tijd hebben. Per geval wordt beoordeeld of een eventueel tweede inkomen voor 50% wordt meegerekend.

Voorbeeld:
Voorbeeld inkomenseis:
In het geval van één persoon is het vereiste bruto maandinkomen € 5.040,- exclusief vaste toeslagen.
Het voorbeeld is indicatief en hieraan kunt u geen rechten ontlenen.

Inschrijving:
Als u aan de voorwaarden voldoet kunt u zich als volgt inschrijven:
– Ga naar de website van Van der Borden Vastgoedprofessionals;
– Klik op de knop Huur & Beheer;
– Actueel aanbod huurwoningen;
– Kies voor de knop inschrijven;
– Als u de inschrijving volledig heeft doorlopen ontvangt u een bevestiging.

Deze advertentie is met de meeste zorg samengesteld. Desondanks kunnen foto’s en tekst afwijken van de werkelijke situatie. Aan de advertentie (foto’s, informatie en plattegronden) kunnen geen rechten worden ontleend.

Kenmerken

Huurprijs
€ 1.440,-
Kosten nutsvoorzieningen
€ 75,00
Beschikbaar vanaf
01/02/2026
Type
Bouwjaar
2020
Oriëntatie
zuid
Aantal kamers
3
Aantal verdiepingen
1
Woonoppervlakte
75 m²
Energielabel
A