Al sinds 1933 dé vastgoedspecialist Twee vestigingen in regio Alkmaar Maar liefst 9 certificeringen
Aanbod Terug naar aanbod
Heerhugowaard Hof van Ra 27
€ 1.755,-

108 m²

Wonen

5

Kamers

Heerhugowaard Hof van Ra 27
€ 1.755,- p/m

108 m²

Wonen

5

Kamers

Omschrijving

Een ontzettend fijne en ruime eengezinswoning vlak bij het Strand van Luna komt per 1 februari 2026 beschikbaar!

Op zondag een frisse duik nemen of een heerlijke middagwandeling met het zonnetje. De omgeving bij deze prachtige woning biedt dit allemaal.
Bovendien zijn alle benodigde voorzieningen binnen handbereik, waaronder het winkelcentrum Stad van de Zon, met alle gemakken van dien. Zoals een supermarkt, kapper en drogisterij. Voorzieningen zoals scholen, kinderdagverblijven en uitvalswegen zijn binnen handbereik. Voor kinderen is er speelruimte, zowel direct voor de woning als in de wijk zelf.

Een prettige en ruim opgezette woning, met maar liefst 3 ruime slaapkamers en een zeer ruime zolderverdieping waar een vierde slaapkamer gecreëerd kan worden. De achtertuin is royaal en beschikt over een houten berging die voorzien is van elektra. De woning is daarnaast uitgerust met zonnepanelen.

Al met al is dit een parel van een woning!

Begane grond:
Entree/hal, meterkast, toilet met fonteintje, trapopgang, ruime tuingerichte woonkamer (ca. 25 m²) met toegangsdeur naar de achtertuin, trapkast, open lichte keuken voorzien van diverse boven- en onder kastjes, gaskookplaat met afzuigkap, koel-/vriescombinatie en combimagnetron.

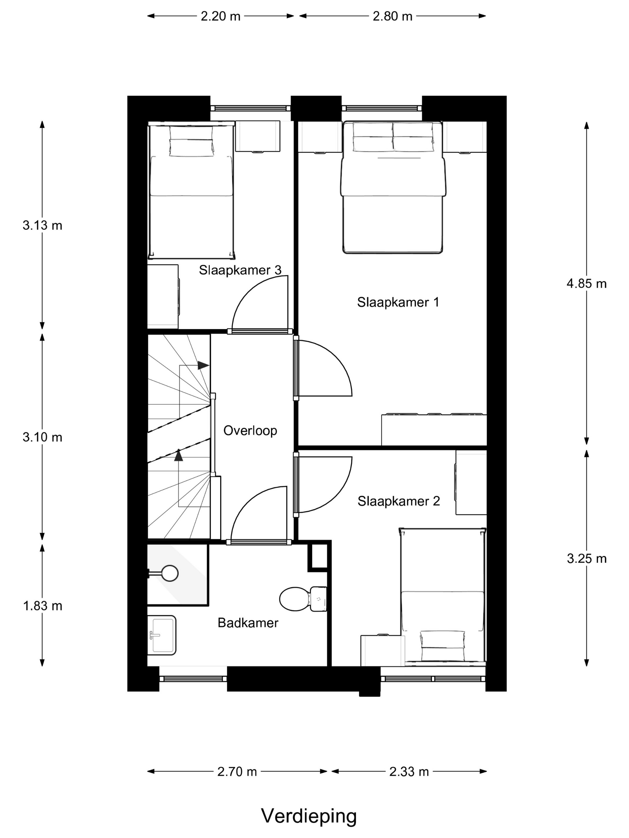
1e verdieping:
Overloop, volledig betegelde badkamer in lichte kleurstelling, douchehoek, 2e toilet, wastafel met spiegel en planchet. Op de 1e verdieping treft u drie ruime slaapkamers aan.

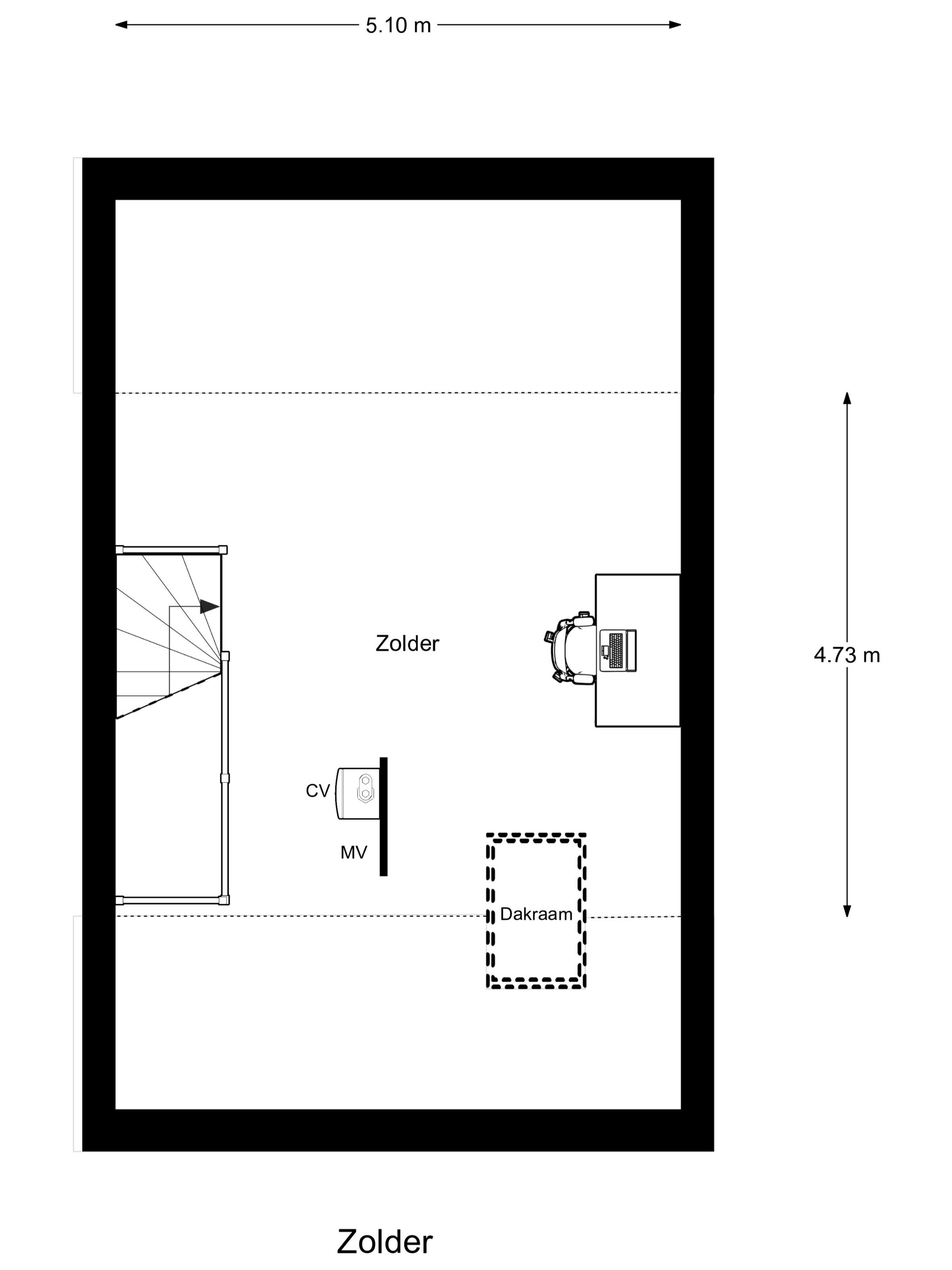
2e verdieping:
Via vaste trap bereikbare, open zolderruimte met een zee van ruimte en met cv-opstelling, apparatuur t.b.v. de zonnepanelen, wasmachineaansluiting, dakraam. Deze ruimte biedt qua indeling de éénvoudige mogelijkheid een 4e slaapkamer te creëren.

Bijzonderheden:
– Onderhoud op basis van onderhoudsverdeling verhuurder;
– De woning dient door huurder zelf gestoffeerd te worden;
– Huisdieren in overleg;
– Roken is niet toegestaan;
– Openbaar parkeren (gratis);
– Kindvriendelijke ligging;
– Energiezuinige woning met lage energielasten in CO2 neutrale woonwijk;
– Zonnepanelen zijn aanwezig.

Huur(termijn):
– Aanvaarding per 1 februari 2026;
– De huurovereenkomst is gebaseerd op een ROZ-overeenkomst;
– De huurovereenkomst wordt afgesloten voor een periode van minimaal 24 maanden. Tijdens deze periode kan de huurder de huurovereenkomst niet tussentijds opzeggen. Na deze periode loopt de huurovereenkomst voor onbepaalde tijd door en heeft de huurder een opzegtermijn van een kalendermaand.

Financieel:
– Huurprijs per maand € 1.755, exclusief gas/water/elektriciteit en gemeentelijke gebruikersbelastingen;
– Waarborgsom € 1.755, -.

Inkomenseis:
Belangrijk uitgangspunt voor de beoordeling van een kandidaat huurder is het inkomen.
Als uitgangspunt hanteert verhuurder een inkomenseis van een bruto maand inkomen van de hoofdkostwinnaar, dat gelijk moet zijn aan 3,75 x de kale huurprijs. Indien in loondienst dient er een arbeidsovereenkomst voor onbepaalde tijd te zijn. Per geval wordt beoordeeld of een eventueel tweede inkomen voor 50% wordt meegerekend.

Deze advertentie is met de meeste zorg samengesteld. Desondanks kunnen foto’s en tekst afwijken van de werkelijke situatie. Aan de advertentie kunnen geen rechten worden ontleend.

Kenmerken

Huurprijs
€ 1.755,-
Beschikbaar vanaf
01/02/2026
Type
Bestaande bouw
Bouwjaar
2008
Oriëntatie
zuid
Aantal kamers
5
Aantal verdiepingen
3
Woonoppervlakte
108 m²
Energielabel
A

Plattegronden