Al sinds 1933 dé vastgoedspecialist Twee vestigingen in regio Alkmaar Maar liefst 9 certificeringen
Aanbod Terug naar aanbod
Alkmaar Helderseweg 14A
Huur € 3.125,- p/m
Alkmaar Helderseweg 14A
Huur € 3.125,- p/m

260 m2

Oppervlakte

260 m2

Perceel

Omschrijving

Algemeen
Adres: Helderseweg 14A, 1815 AB Alkmaar

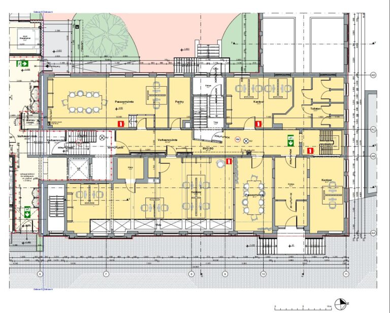
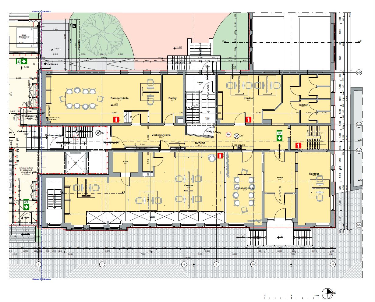
Zeer representatieve kantoorruimte met een oppervlakte van ca. 260 m² BVO, gelegen op een uitstekende zicht- en bereikbare locatie. Het pand beschikt over goede parkeergelegenheid en biedt een prettige werkomgeving.

Locatie en bereikbaarheid
De Helderseweg ligt nabij het centrum van Alkmaar, op korte afstand van het station en de winkels.
Mooie woon-/werkomgeving met gemengd gebruik: kantoren, bedrijven, voorzieningen, en groeivormen zoals stadsvernieuwing.
Goed bereikbaar per auto en openbaar vervoer –> De Helderseweg sluit aan op de N9, wat directe verbinding geeft naar gebieden als Heerhugowaard, Den Helder en richting Bergen.

Parkeergelegenheid
Ruime parkeermogelijkheden op eigen terrein.

Indeling van het pand
Totale oppervlakte: ca. 260 m² BVO (begane grond)
Daarnaast is er de mogelijkheid om het ondergelegen souterrain van ca. 200 m² BVO bij te huren.

Indeling:
Entree/hal, wachtkamer, garderoberuimte, sanitaire voorzieningen, diverse spreekkamers/kantoorruimtes, royale kantoorruimtes aan de voorzijde en achterzijde, dichte keuken met pantry.

Voorzieningen
– systeemplafond met verlichting
– databekabeling
– pantry en sanitaire voorzieningen
– 2 kluisruimtes

Bestemming en gebruik
– Bestemming: kantoorfunctie
– Geschikt voor o.a. zakelijke dienstverlening, creatieve bedrijven en overige kantoorhoudende activiteiten.

Huurcondities
Huurprijs: € 37.500,- per jaar / € 3.125,- per maand

Servicekosten: nader te bepalen

Huurtermijn: flexibele huurtermijn mogelijk

Aanvaarding: in overleg

Bijzonderheden
– Mogelijkheid tot uitbreiding door bij huren van het souterrain (ca. 200 m² BVO)

Kenmerken

Prijs
€ 3.125,-
Prijs
€ 0,-

Ligging

Ligging
Winkelgebied stadscentrum