Al sinds 1933 dé vastgoedspecialist Twee vestigingen in regio Alkmaar Maar liefst 9 certificeringen
Verkocht onder voorbehoud
Egmond aan den Hoef Mosselaan 69
Koop € 599.000,- k.k.

381 m2

Oppervlakte

381 m2

Perceel

Omschrijving

TE KOOP: Mosselaan 69 / Bijlmansweid 10 te Egmond aan den Hoef

Gelegen op een kleinschalig bedrijventerrein “De Weidjes”, treft u deze zeer aantrekkelijk, goed onderhouden kantoorruimte op de 1e verdieping met representatieve entree, receptieruimte, vaste kasten, technische ruimte, archief, kantine met keuken (voorzien van vaatwasser, magnetron en close in boiler, werkkast met uitstortgootsteen en boiler), sanitaire voorzieningen. Tevens treft u aan 3 kantoorruimtes en 2 spreekkamers.

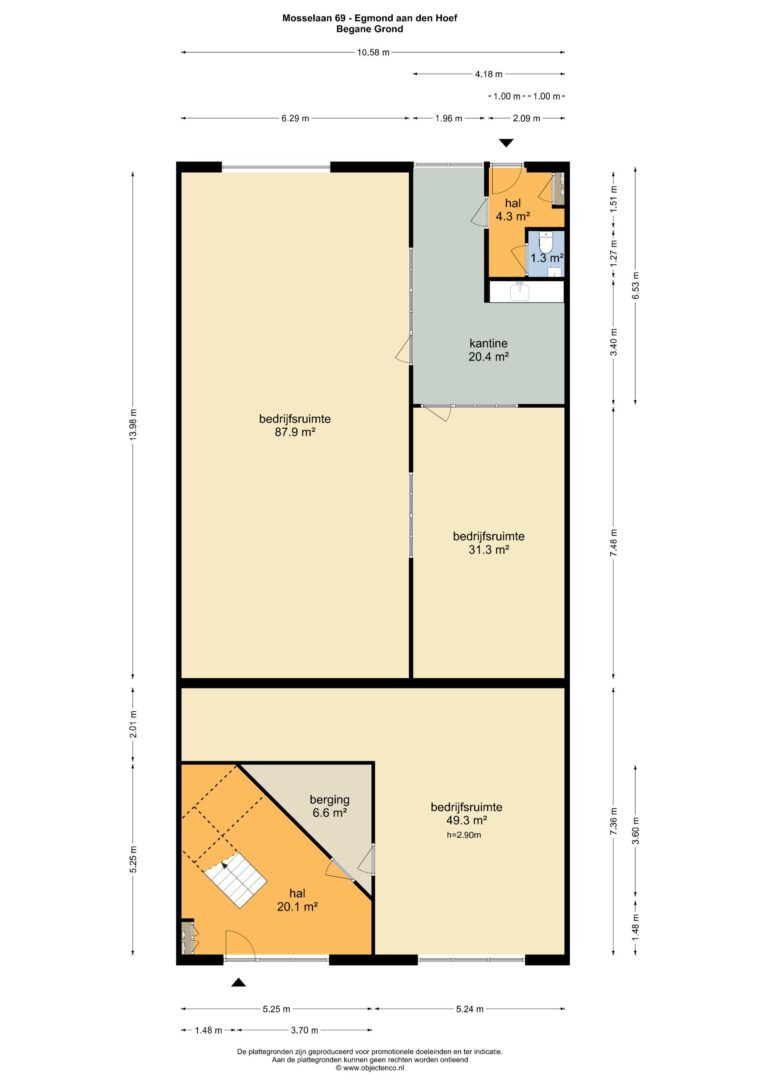
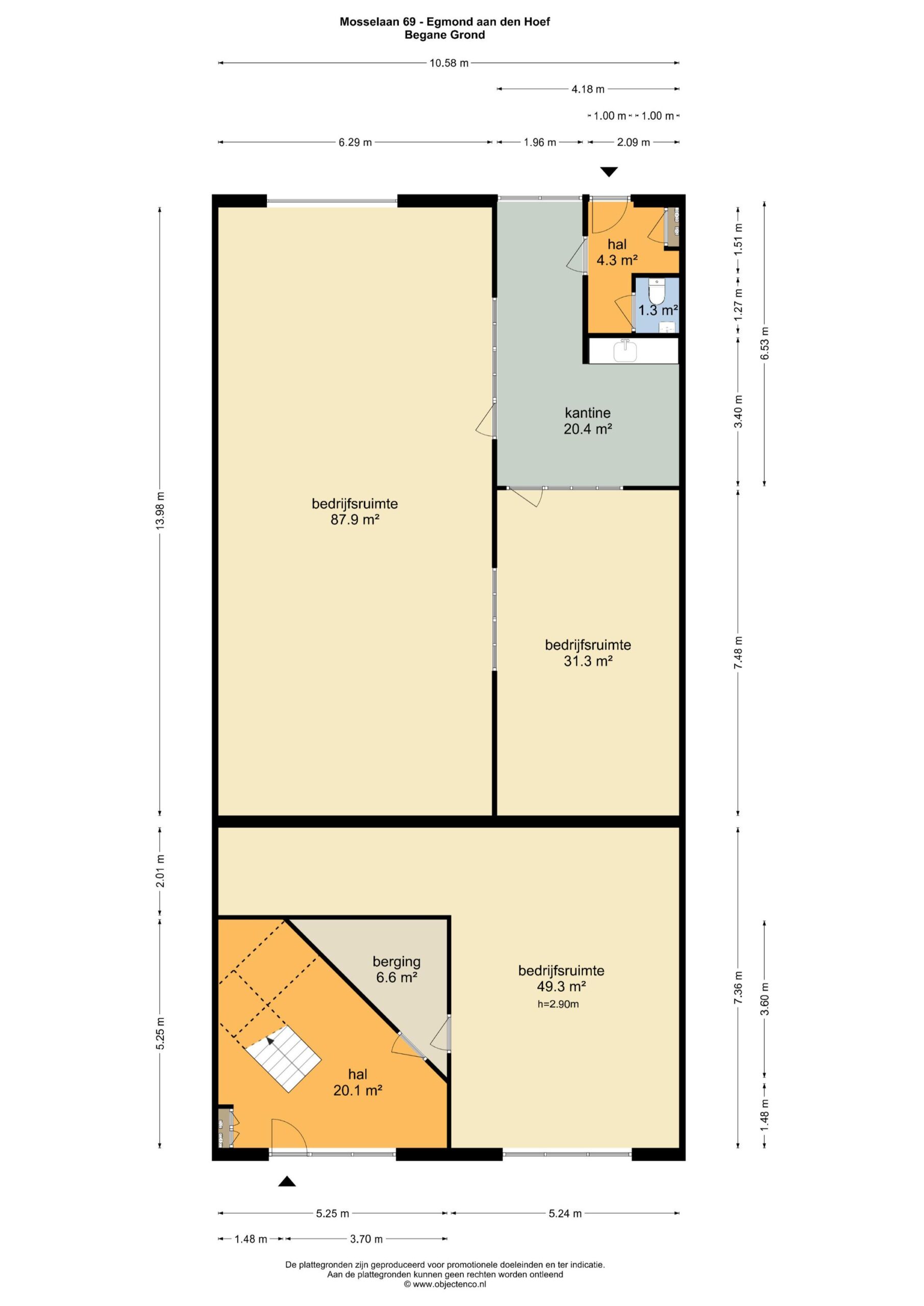
De begane grond Mosselaan 69 te Egmond aan den Hoef bestaat uit een entree, hal en berging en bedrijfsruimte (ca. 49 m²).

De begane grond Bijlmansweid 10 te Egmond aan den Hoef bestaat uit een overheaddeur, loopdeur, entree/hal (ca. 4 m²), kantine (ca. 20 m²), sanitaire voorziening en 2 bedrijfsruimtes (87 m² en 31 m²).

Totaal groot 482 m² BVO

Parkeren:
Parkeren kan voor de deur en er is voor meerdere auto’s plek.

Isolatie:
Het pand is voorzien van dubbele beglazing, alsmede dakisolatie.

Voorzieningen:
Alarminstallatie.

Bereikbaarheid:
De bereikbaarheid is zeer goed, direct vanaf de provinciale weg tussen Alkmaar en Castricum.

Kadastraal:
Gemeente Egmond Binnen, sectie B, nummer 1624, groot 381 m².

Installaties:
Cv-installatie met cv-ketels (Intergas), airco-installatie in de kantoorruimte, warmte-terugwinning-installatie.

Bouwjaar:
Omstreeks 2000 – traditioneel gebouwd.

Vraagprijs:
€ 599.000,- k.k.

Aanvaarding:
Snelle oplevering is mogelijk.

BTW:
BTW is in deze niet van toepassing.

Energielabel:
Geldt energielabel A.

Kenmerken

Prijs
€ 0,-
Prijs
€ 599.000,-

Oppervlaktes en inhoud

Perceel
381 m2

Ligging

Ligging
Bedrijventerrein

Energieverbruik

Energielabel
A