Al sinds 1933 dé vastgoedspecialist Twee vestigingen in regio Alkmaar Maar liefst 9 certificeringen
Alkmaar Rozenstraat 19
€ 698.000 k.k.

139 m2

Wonen

144 m2

Perceel

6

Kamers

Omschrijving

Sfeervol en instapklaar wonen in de gewilde Bloemwijk!

Welkom aan de Rozenstraat 19 in Alkmaar, een prachtig uitgebouwde en uitstekend onderhouden jaren ’30 woning waar karakter en comfort samenkomen. Deze ruime gezinswoning (ca. 139 m²) is tot in de puntjes verzorgd, volledig instapklaar en biedt maar liefst vijf slaapkamers, een heerlijke serre, energielabel B en 8 zonnepanelen. Hier kunt u direct genieten van modern wooncomfort met de charme van vroeger.

De woning ligt in de geliefde Bloemwijk, op korte afstand van het centrum van Alkmaar. In de directe omgeving vindt u scholen, winkels, speeltuintjes en het openbaar vervoer. De uitvalswegen richting Amsterdam en Heerhugowaard zijn uitstekend bereikbaar.

Indeling

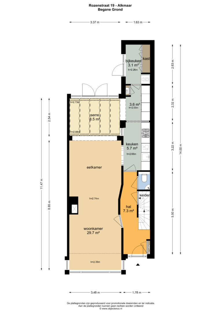
Begane grond
Bij binnenkomst voelt u meteen de warme, huiselijke sfeer. De sfeervolle hal met de originele wandtegels en warme Eiken vloer die doorloopt tot in de woonkamer zorgen ervoor dat u zich gelijk thuis voelt. De lichte ca. 30 m² grote woonkamer met serre aan de achterzijde vormt het hart van het huis, een heerlijke plek om samen te komen. De houtkachel zorgt voor extra sfeer gedurende de donkere maanden van het jaar. Dankzij de grote raampartijen en de ligging op het zuidwesten geniet u hier de hele dag van zon en licht. Via de openslaande deuren wandelt u zo de tuin in. De moderne ca. 9 m² grote witte keuken is een echte blikvanger: ruim opgezet en voorzien van een vaatwasser, magnetron, oven, Quooker kraan, afzuiging en een koel/vries combinatie. Achter de keuken vindt u nog de bijkeuken met aansluiting voor de wasmachine en -droger en voldoende bergruimte.

Eerste verdieping
Hier vindt drie ca. 5 m², 11 m² en 12 m² grote slaapkamers, stuk voor stuk netjes afgewerkt en voorzien van een fraaie pvc vloer. Tussen de grootste slaapkamers is het separaat toilet met fonteintje en de ca. 4 m² grote badkamer is leuk roze betegeld en voorzien van een douche en wastafelmeubel.

Tweede verdieping
Hier komt de grootte van de woning echt goed tot zijn recht want hier vindt u nog eens twee ca. 8 m² en 13 m² grote slaapkamers, de ca. 10 m² grote overloop en meer dan voldoende bergruimte. Extra comfortabel op deze verdieping is de aangelegde vloerverwarming, wat een genot! De ca. 16 m² grote zolder boven de slaapkamers biedt voldoende ruimte voor uw koffers, kerstspullen en nog veel meer.

De tuin
De onderhoudsvriendelijke tuin is keurig aangelegd en biedt volop privacy; perfect om te ontspannen of gezellig te dineren op lange zomeravonden. Achter in de tuin is een houten berging met fietsenhok.

Bijzonderheden
• Bouwjaar 1938, volledig instapklaar;
• Woonoppervlakte ca. 139 m²;
• Maar liefst vijf slaapkamers;
• Energielabel B;
• Voorzien van 8 zonnepanelen (lage energielasten);
• Uitgebouwde serre aan de achterzijde, veel licht en extra leefruimte;
• Vloerverwarming op de tweede verdieping, zeer comfortabel;
• Zeer nette, onderhoudsvriendelijke tuin op het zuidwesten;
• Gelegen in de populaire Bloemwijk, op loopafstand van het centrum van Alkmaar;
• Nabij scholen, winkels, openbaar vervoer en uitvalswegen;
• Oplevering in overleg.

Kenmerken

Prijs
€ 698.000 k.k.
Status
Beschikbaar
Aanvaarding
In overleg

Oppervlaktes en inhoud

Perceel
144 m2
Woonoppervlakte
139 m2
Inhoud
543 m3
Buitenruimte
3 m2

Bouw

Type object
Woonhuis
Soort
Eengezinswoning
Type
Tussenwoning
Bouwjaar
1938
Dak type
Zadeldak
Isolatievormen
Dakisolatie, Muurisolatie, Vloerisolatie, Dubbelglas

Indeling

Aantal kamers
6
Aantal slaapkamers
5

Ligging

Ligging
Aan rustige weg, Beschutte ligging

Tuin

Type
Achtertuin
Staat
Fraai aangelegd
Ligging
Zuidwest
Achterom
Ja

Energieverbruik

Energielabel
B

Voorzieningen

Soorten warm water
CV ketel
Parkeer faciliteiten
Parkeervergunningen

Plattegronden

Documenten

Download
Kaart van het Kadaster Download