Al sinds 1933 dé vastgoedspecialist Twee vestigingen in regio Alkmaar Maar liefst 9 certificeringen
Aanbod Terug naar aanbod
Anna Paulowna Plevierstraat 8
€ 295.000 k.k.

107 m2

Wonen

153 m2

Perceel

5

Kamers

Download brochure
Anna Paulowna Plevierstraat 8
€ 295.000 k.k.

107 m2

Wonen

153 m2

Perceel

5

Kamers

Omschrijving

Starters opgelet! Fijne woning met veel potentie in Anna Paulowna

Aan de Plevierstraat 8 in Anna Paulowna staat deze leuke eengezinswoning te wachten op nieuwe bewoners die de handen uit de mouwen willen steken. Met een woonoppervlakte van ca. 107 m², een energielabel A en maar liefst 10 zonnepanelen is de basis uitstekend. De woning is wel gedateerd, maar biedt juist daardoor alle mogelijkheden om er helemaal uw eigen thuis van te maken.

De woning is deels voorzien van kunststof kozijnen en beschikt over een diepe achtertuin van ca. 13 meter, gelegen op het noordoosten, een fijne plek om rustig buiten te zitten en met wat liefde om te toveren tot een heerlijke tuin.

Anna Paulowna is een prettig dorp met een dorps karakter en goede voorzieningen. Winkels, scholen en openbaar vervoer bevinden zich op korte afstand en ook uitvalswegen richting Den Helder, Schagen en Alkmaar zijn eenvoudig bereikbaar. Een ideale plek voor starters die betaalbaar willen wonen met ruimte om te groeien.
Kortom: een woning met een solide basis, duurzame kenmerken en volop mogelijkheden voor wie zijn droomhuis stap voor stap wil realiseren.

Indeling

Begane grond
Via de hal betreedt u de woning. Vanuit hier heeft u toegang tot de woonkamer, de halfopen keuken en de overige voorzieningen. De ca. 36 m² grote woonkamer biedt volop ruimte voor zowel een comfortabele zithoek als een eethoek. Dankzij de praktische indeling en de prettige lichtinval is dit een fijne leefruimte met veel mogelijkheden. De halfopen keuken sluit hier mooi op aan en vormt een goede basis voor een moderne update.

Eerste verdieping
Op de eerste verdieping bevinden zich drie slaapkamers, een overloop en de badkamer. De ca. 9 m², 9 m² en 12 m² grote slaapkamers zijn praktisch van formaat en bieden voldoende ruimte voor een gezin, thuiswerken of logees. De badkamer is eenvoudig uitgevoerd en kan geheel naar eigen wens worden gemoderniseerd.

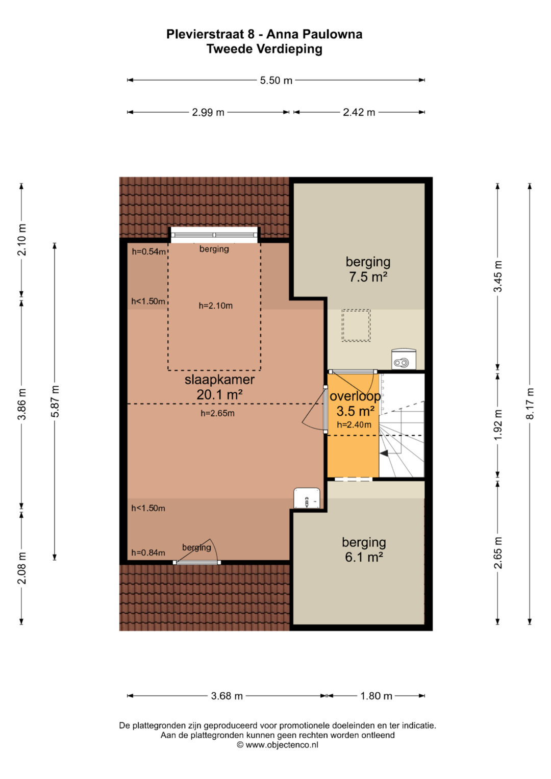
Tweede verdieping
De tweede verdieping verrast met een ruime vierde ca. 20 m² slaapkamer en daarnaast twee bergingen, ideaal voor het opbergen van seizoensspullen, koffers of gereedschap. Deze verdieping biedt extra woon- en bergruimte en maakt de woning bijzonder geschikt voor gezinnen of thuiswerkers.

Bent u klaar om deze woning nieuw leven in te blazen? Dan is Plevierstraat 8 absoluut een bezichtiging waard!

Bijzonderheden
• Starterswoning met veel potentie;
• Woonoppervlakte ca. 107 m²;
• Energielabel A;
• Voorzien van 10 zonnepanelen;
• Gedeeltelijk voorzien van kunststof kozijnen;
• Gedateerde woning: volledig naar eigen smaak te moderniseren;
• Vier slaapkamers verdeeld over twee verdiepingen;
• Ruime woonkamer van ca. 36 m²;
• Oplevering in overleg, kan spoedig;
• As is where is clausule is van toepassing.

Kenmerken

Prijs
€ 295.000 k.k.
Status
Beschikbaar
Aanvaarding
In overleg

Oppervlaktes en inhoud

Perceel
153 m2
Woonoppervlakte
107 m2
Inhoud
372 m3
Buitenruimte
0 m2

Bouw

Type object
Woonhuis
Soort
Eengezinswoning
Type
Tussenwoning
Bouwjaar
1975
Dak type
Zadeldak
Isolatievormen
Dakisolatie, Muurisolatie, Dubbelglas, HR glas

Indeling

Aantal kamers
5
Aantal slaapkamers
4

Ligging

Ligging
Aan rustige weg, In woonwijk

Tuin

Type
Achtertuin
Staat
Verwaarloosd
Ligging
Noordoost
Achterom
Ja

Energieverbruik

Energielabel
A

Voorzieningen

Soorten warm water
CV ketel
Parkeer faciliteiten
Openbaar parkeren

Plattegronden

Documenten

Download
Kaart van het Kadaster Download