Al sinds 1933 dé vastgoedspecialist Twee vestigingen in regio Alkmaar Maar liefst 9 certificeringen
Castricum Deurganck 9
€ 495.000 k.k.

128 m2

Wonen

182 m2

Perceel

5

Kamers

Omschrijving

Fijn wonen in een gezellig dorp!

Deze lichte en sfeervolle tussenwoning met vier slaapkamers kijkt uit naar een nieuw hoofdstuk met nieuwe bewoners.
Binnen ervaar je ruimte, licht en comfort, met een mooie, lichte visgraatvloer die de woning karakter geeft.
De woning is gelegen aan een rustige wandelstraat tegenover een plantsoen, in een kindvriendelijke buurt. Dankzij de diepe voor- en achtertuin kun je hier genieten van veel privacy.

De locatie is ideaal: op loopafstand van winkelcentrum Geesterduin voor al je dagelijkse boodschappen, en dichtbij een binnenzwembad, sportfaciliteiten, basisscholen én het bruisende dorpscentrum van Castricum. Hier kun je genieten van wekelijkse markten, gezellige cafés en restaurants.

Daarnaast zijn bos, duinen en strand eenvoudig per fiets bereikbaar. Dankzij het NS-station en de nabijheid van snelwegen ben je snel in Alkmaar, Haarlem of Amsterdam.

Indeling
Begane grond:
Binnenkomst in de hal met toilet en toegang tot de lichte, ruime woonkamer met een lichte visgraatvloer. De trap in de woonkamer verdeelt de ruimte in een gezellige voorkamer (ca. 25,5 m²) en een achterkamer/eethoek (ca. 10 m²) met directe toegang tot de achtertuin. De halfopen keuken (ca. 8,5 m²) in hoekopstelling is voorzien van een elektrische kookplaat, afzuigkap, combi-oven en vaatwasser, en geeft ook toegang tot de tuin.

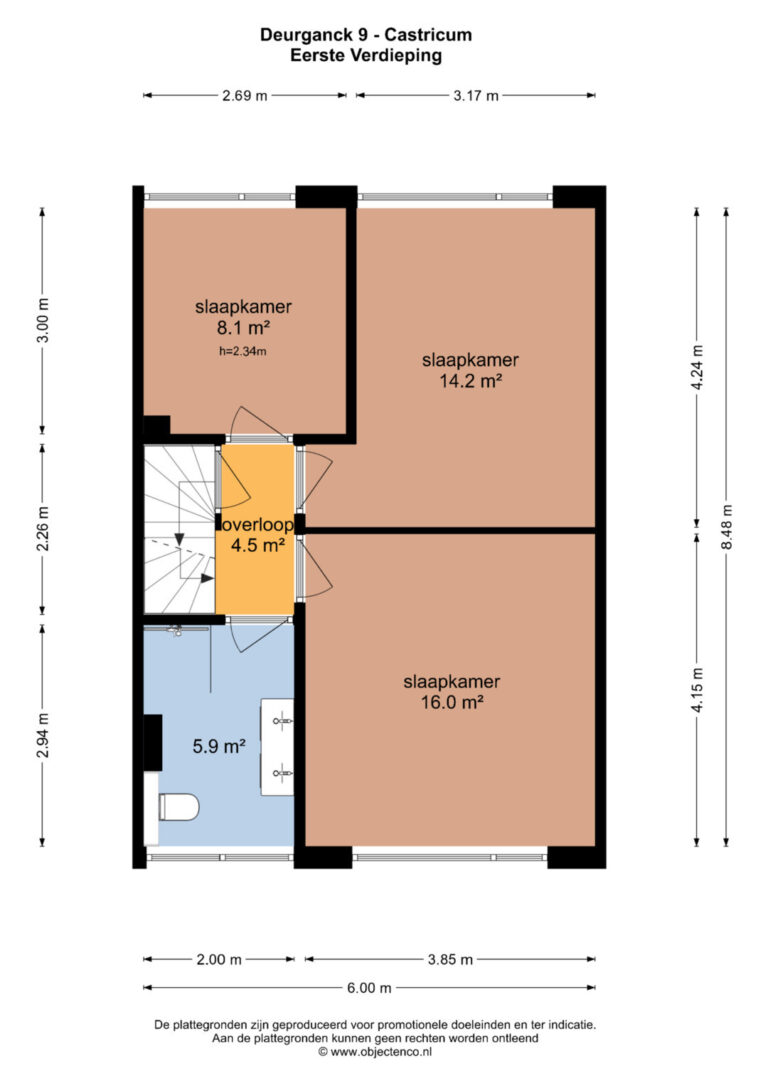
Eerste verdieping:
De overloop leidt naar drie slaapkamers: de grootste aan de voorzijde (ca. 16 m²) en twee aan de achterzijde (ca. 14 m² en 8 m²). De badkamer (ca. 6 m²) aan de voorzijde is uitgerust met een inloopdouche, dubbele wastafel met meubel, designradiator en toilet.

Tweede verdieping:
Ruime voorzolder (ca. 14,5 m²) met wasmachineaansluiting en cv-opstelling. De grote zolderslaapkamer (ca. 23 m²) is voorzien van een dakkapel, waardoor er volop licht binnenvalt.

Tuin:
De diepe voortuin (ca. 8 meter) op het zuidwesten biedt veel privacy en ruimte om heerlijk buiten te zitten. De achtertuin (ca. 11,5 meter) ligt op het noordoosten, wat zorgt voor verkoeling in de zomer. Hier staat een vrijstaande stenen berging met overkapping, ideaal om een veranda te creëren waar je ook bij minder weer van het buiten zijn kunt genieten.

Bijzonderheden:
– Ruime tussenwoning met diepe voor- en achtertuin;
– Woonoppervlak ca. 128 m²;
– Energielabel C;
– Dak gunstig gelegen voor zonnepanelen;
– Rustige, groene en kindvriendelijke omgeving;
– Nabij winkels, scholen en voorzieningen;
– Voormalige huurwoning;
– Verkoper is niet bekend met de woning;
– In de koopovereenkomst worden ouderdoms-, asbest- en niet-zelfbewoningsclausules opgenomen;
– Aanvaarding in overleg, spoedig mogelijk.

Kenmerken

Prijs
€ 495.000 k.k.
Status
Beschikbaar
Aanvaarding
In overleg

Oppervlaktes en inhoud

Perceel
182 m2
Woonoppervlakte
128 m2
Inhoud
433 m3
Buitenruimte
0 m2
Tuinoppervlakte
115 m2

Bouw

Type object
Woonhuis
Soort
Eengezinswoning
Type
Tussenwoning
Bouwjaar
1968
Dak type
Zadeldak
Isolatievormen
Dakisolatie, HR glas

Indeling

Aantal kamers
5
Aantal slaapkamers
4

Ligging

Ligging
Aan rustige weg, In centrum, In woonwijk, Beschutte ligging

Tuin

Type
Achtertuin
Staat
Normaal
Ligging
Noordoost
Achterom
Ja

Energieverbruik

Energielabel
C

Voorzieningen

Soorten warm water
CV ketel
Parkeer faciliteiten
Openbaar parkeren

Plattegronden