Al sinds 1933 dé vastgoedspecialist Twee vestigingen in regio Alkmaar Maar liefst 9 certificeringen
Aanbod Terug naar aanbod
Noord-Scharwoude de Mossel 15A
Koop € 1.200.000,- k.k.
Noord-Scharwoude de Mossel 15A
Koop € 1.200.000,- k.k.

2.010 m2

Oppervlakte

2.010 m2

Perceel

Omschrijving

Te koop:
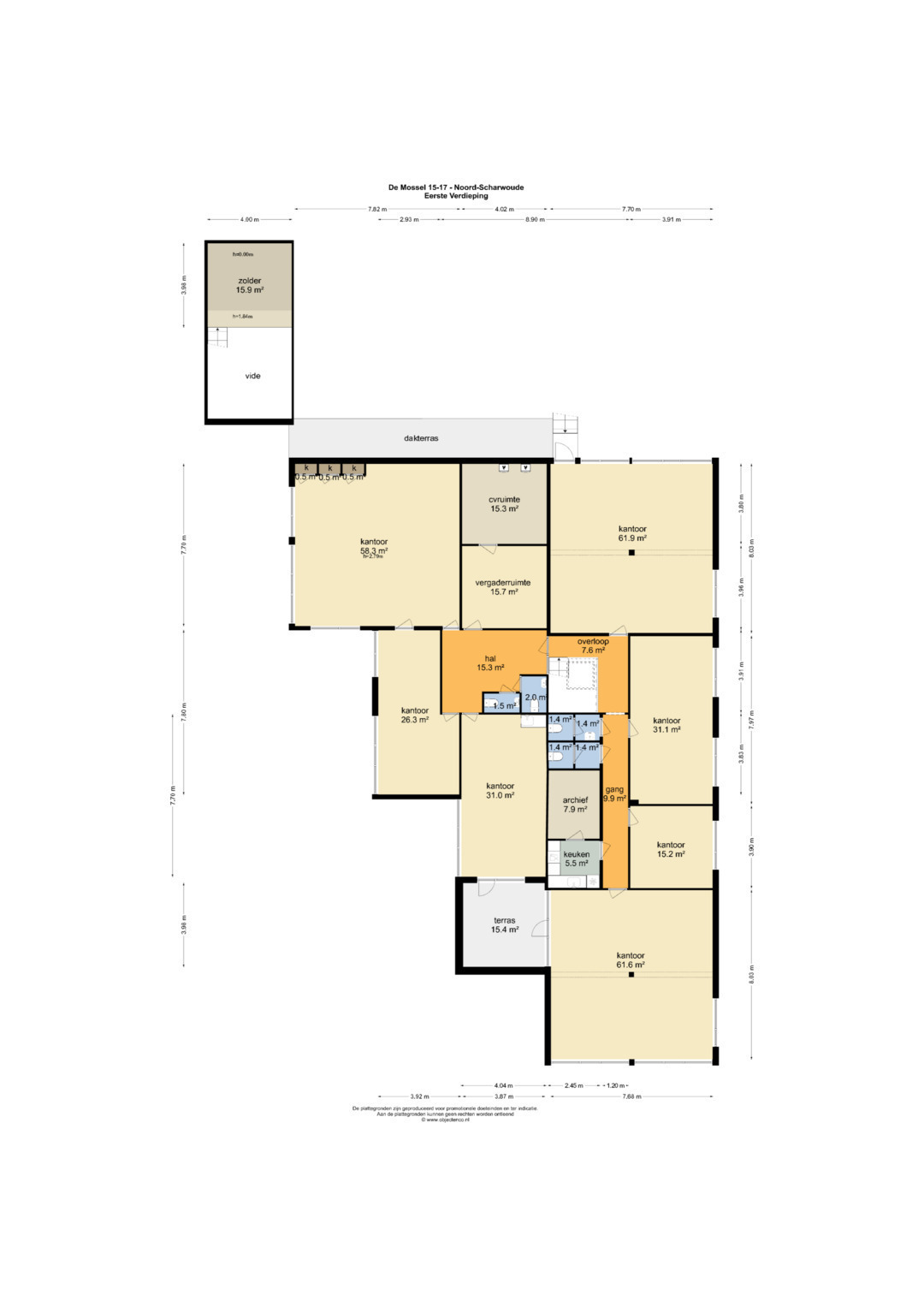
De Mossel 15-17 te Noord-Scharwoude

ALGEMEEN:
Op industrieterrein “de Mossel” gelegen bedrijfs-/kantoorpand van 1.252 m² BVO groot, gesitueerd op een perceel grond van totaal 2.010 m². Het object wordt volledig verhuurd aan meerdere huurders middels huurcontracten. De totale huuropbrengst bedraagt ca. € 90.000,- per jaar.

Deze locatie valt binnen de “Visie werklocaties Dijk en Waard” (rapport als bijlage aanwezig) waarbij eventuele woningbouw in de nabije toekomt mogelijk wordt op deze locatie / “industrieterrein de Mossel. Naast de huidige belegging dus ook een potentiële herontwikkelingslocatie.

Huurcontracten zijn op aanvraag beschikbaar.

BEREIKBAARHEID:
Uitstekend bereikbaar middels de provinciale weg N504.
Er bevinden zich voldoende parkeerplaatsen op eigen terrein.

BIJZONDERHEDEN:
– Bouwjaar 1985;
– Oppervlakte ca. 1.252,50 m². (NEN 2580 meetrapport aanwezig).

KADASTER:
Gemeente Langedijk, sectie B, nummers 2457 & 2603, totaal groot 2.010m².

BESTEMMING
Bestemmingsplan “Bedrijventerreinen in Langedijk” vastgesteld op 25-6-2013.
Art. 5, bedrijventerrein 2, welke bestemd zijn voor:
-bedrijven in de milieucategorieën 1 en 2 als opgenomen in bijlage 2 bij deze regels behorende ‘Staat van Bedrijven – Overige bedrijventerreinen’;
– op de gronden ter plaatse van de aanduiding “bedrijven tot en met categorie 3.1” bedrijven in de milieucategorieën 1 t/m 3.1 als opgenomen in bijlage 2 bij deze regels behorende ‘Staat van Bedrijven – Overige bedrijventerreinen’;
-op de gronden ter plaatse van de aanduiding “bedrijven tot en met categorie 3.2” bedrijven in de milieucategorieën 1 t/m 3.2 als opgenomen in bijlage 2 bij deze regels behorende ‘Staat van Bedrijven – Overige bedrijventerreinen’;
– groenvoorzieningen;
– openbare nutsvoorzieningen;
– verkeers- en verblijfsvoorzieningen;
– water en oeverstroken;
– standplaatsen.

Zoals reeds benoemd valt deze locatie onder de visie werklocaties Dijk en Waard en zal woningbouw in de toekomst mogelijk kunnen worden.

VRAAGPRIJS:
€ 1.200.000,- k.k. vrij van btw.

OPLEVERINGSNIVEAU:
In huidige verhuurde staat.

AANVAARDING:
In overleg, kan snel.

MODELOVEREENKOMST:
Model koopovereenkomst voor Bedrijfsonroerendgoed (model 2023).

VOORBEHOUD:
Goedkeuring en gunning eigenaar.

Alle informatie is geheel vrijblijvend en houdt enkel in een uitnodiging tot het doen van een bieding. Alle gegevens zijn met zorg samengesteld en uit ons inziens betrouwbare bron afkomstig. Ten aanzien van de juistheid ervan kunnen wij echter geen aansprakelijkheid aanvaarden.

Kenmerken

Prijs
€ 0,-
Prijs
€ 1.200.000,-

Oppervlaktes en inhoud

Perceel
2.010 m2

Ligging

Ligging
Bedrijventerrein