Al sinds 1933 dé vastgoedspecialist Twee vestigingen in regio Alkmaar Maar liefst 9 certificeringen
Alkmaar Bergerweg 68
€ 787.000 k.k.

158 m2

Wonen

290 m2

Perceel

5

Kamers

Omschrijving

Te koop: Ruim half vrijstaand herenhuis dat sfeer en karakter ademt!

Op super locatie gelegen mogen wij u dit herenhuis aanbieden met authentieke details in Amsterdamse schoolstijl, veel leefruimte en wooncomfort. U treft hier een lichte en ruime woonkamer, keuken, een praktische bijkeuken, 4 ruime slaapkamers, een garage mét sauna, tuin, dakterras en een lange oprit met parkeergelegenheid voor meerdere auto’s.

De authentieke elementen geven het huis een unieke uitstraling en een warm karakter. Opvallend in het huis is de lichtinval: In iedere ruimte van het huis is wel een raampartij te vinden.
Of u nu in de lichte woonkamer zit, één van de ruime slaapkamers betreedt, of de praktische bijkeuken inloopt – het daglicht valt altijd binnen en creëert een prettige, open sfeer.
Ander pluspunt is de extra bergruimte: van een grote garage tot een bijkeuken en ruime zolder – er is meer dan voldoende plek voor al uw spullen, ideaal voor een gezin!

De woning is gelegen aan de Bergerweg op een steenworp afstand van de stad, met makkelijke toegang tot uitvalswegen, waardoor comfort en gemak perfect in balans zijn.
De dichtstbijzijnde supermarkt bevindt zich op 1 kilometer afstand, basisscholen bevinden zich op loop-/korte fietsafstand en middelbare scholen zijn gemakkelijk per fiets of bus bereikbaar. In slechts 20 minuten rijden bevindt u zich op het strand en in het duingebied, ideaal voor lange wandelingen, fietstochten of gewoon om van de natuur te genieten.

Indeling:
Begane grond:
Entree met hal van ca. 8 m² voorzien van een toilet met fonteintje en trapopgang naar de 1e verdieping.
Vanuit de hal worden direct de eerste karakteristieke details zichtbaar, zoals het fraaie tegelwerk in Amsterdamse School stijl, die de woning meteen een authentiek en warme uitstraling geeft.
Vanuit hier heeft u toegang tot de woonkamer en keuken.

De ruime ca. 49 m² grote woonkamer biedt veel leefruimte. Dankzij de vele raampartijen ademt de woonkamer licht en geeft het een ruimtelijk gevoel.
In de lichte woonkamer creëert een roomdivider een mooie scheiding tussen het gezellige zitgedeelte en het apart eetgedeelte, waardoor er zowel een gevoel van openheid als privacy ontstaat. Dit maakt de woonkamer perfect voor zowel ontspanning als het ontvangen van gasten.
De woonkamer heeft een mooie houten vloer en gezellige open haard wat zorgt voor warmte en sfeer.

De ca. 8 m² grote dichte keuken is voorzien van witte kasten en diverse inbouw apparatuur o.a. een inductiekookplaat, koelkast, vriezer, oven en magnetron.
Middels een open toog in de keuken komt u in een aparte hal met toegang tot de bijkeuken en toegang tot de garage. De betegelde bijkeuken ca 8 m² heeft een keukenblok en wasmachine- droger aansluiting. Hier treft u ook de achterdeur naar de tuin.

De inpandige garage van ca. 17 m² heeft genoeg bergruimte en is voorzien van een infrarood sauna.

Eerste verdieping:
Via een vaste trap bereikt u de overloop van de eerste verdieping. In de trapopgang treft u een aantal authentieke details, o.a. sfeervolle tegels langs de wand en glas-in-loodramen.
Vanaf de overloop van ca. 8 m² is er toegang tot de vier slaapkamers van ca. 14, 10, 9 en 9 m². De grootste slaapkamer is voorzien van handige inbouwkasten.Au
Vanuit de twee slaapkamers, die aan de achterzijde zijn gelegen, heeft u toegang tot het royale ca. 40 m² grote dakterras.
Dit ruime dakterras met vlonder is gelegen op het noordoosten en heeft uitzicht over de tuin en richting het water van de Houtvaart.
De nette badkamer is voorzien van een tweede toilet, dubbele wastafel met meubel en een douchecabine.

Tweede verdieping:
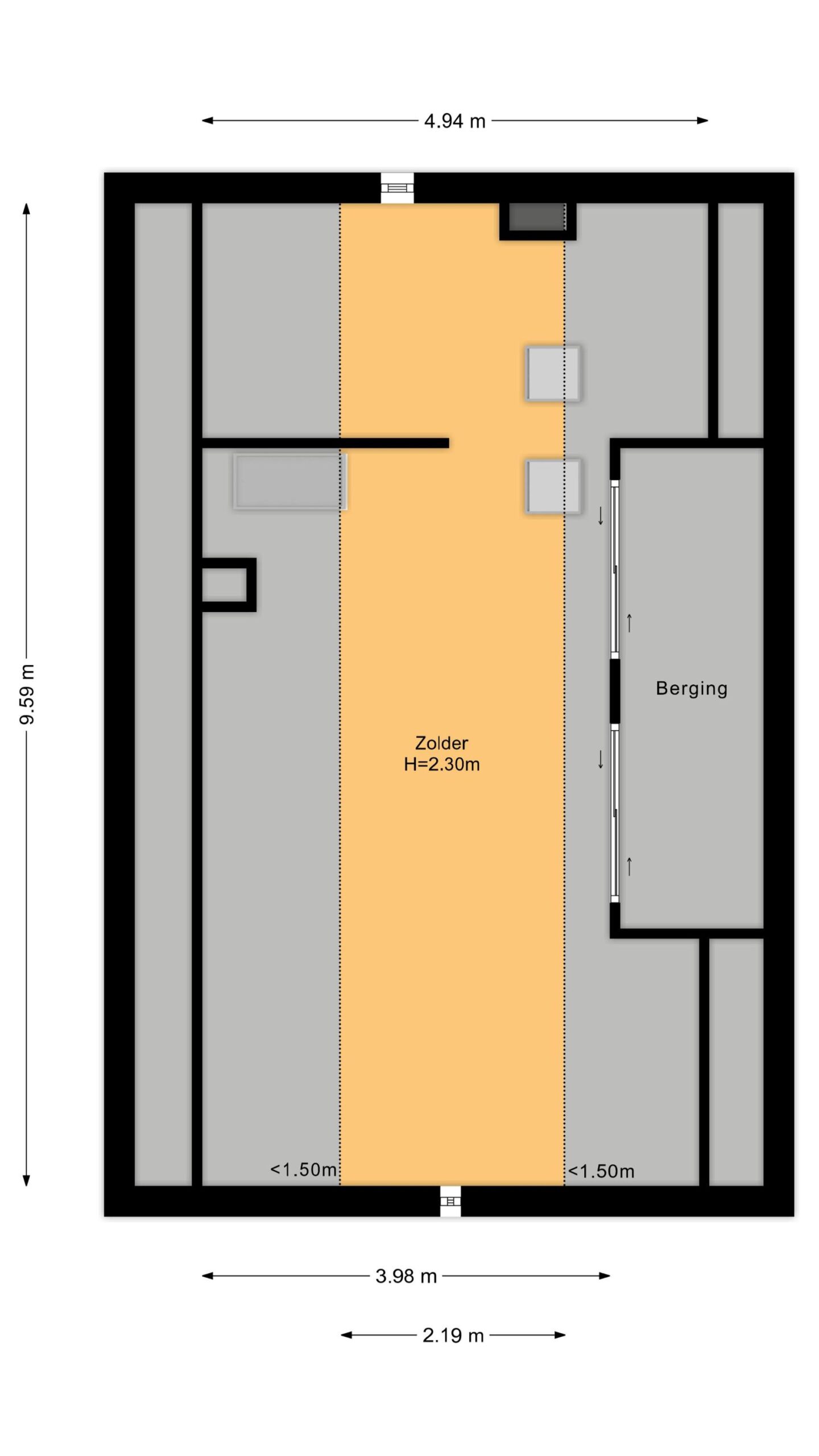
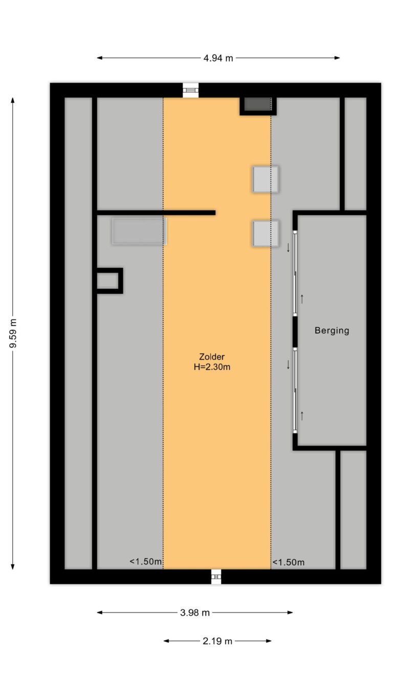
Via vlizotrap bereikt u de ruime ca. 47 m² grote bergzolder met een stahoogte van ca. 2.30 meter en dakramen. Op de zolder vindt u meer dan genoeg ruimte om uw spullen op te ruimen en deze biedt niet alleen praktische opbergruimte, maar ook de mogelijkheid om het verder in te richten naar eigen wens.

Tuin:
De woning beschikt over een gesloten achtertuin gelegen op het noordwesten. Hier treft u een groot betegeld terras dat wordt afgewisseld met groen.

Bijzonderheden:
– Woonoppervlakte ca. 158 m², inhoud ca. 614 m³, perceel oppervlakte 290 m²;
– Karakteristieke half vrijstaande woning met authentieke details;
– 4 ruime slaapkamers;
– Veel bergruimte dankzij de bijkeuken, garage en ruime bergzolder;
– 1e Verdieping voorzien van betonvloer;
– Parkeren op eigen terrein;
– Op toplocatie nabij het centrum van zowel Alkmaar als Bergen gelegen met alle voorzieningen binnen handbereik;
– Op korte afstand van duinen en het strand gelegen;
– Niet-zelfbewoningsclausule en ouderdomsclausule zijn van toepassing;
– Oplevering in overleg/kan snel.

Kenmerken

Prijs
€ 787.000 k.k.
Status
Beschikbaar
Aanvaarding
In overleg

Oppervlaktes en inhoud

Perceel
290 m2
Woonoppervlakte
158 m2
Inhoud
614 m3
Buitenruimte
40 m2
Tuinoppervlakte
70 m2

Bouw

Type object
Woonhuis
Soort
Herenhuis
Type
Halfvrijstaande woning
Bouwjaar
1956
Dak type
Zadeldak
Isolatievormen
Muurisolatie, Grotendeels dubbelglas, HR glas

Indeling

Aantal kamers
5
Aantal slaapkamers
4

Ligging

Tuin

Staat
Fraai aangelegd
Achterom
Nee

Energieverbruik

Energielabel
D

Voorzieningen

Soorten warm water
CV ketel
Parkeer faciliteiten
Op eigen terrein

Plattegronden

Documenten

Kaart van het Kadaster Download