Al sinds 1933 dé vastgoedspecialist Twee vestigingen in regio Alkmaar Maar liefst 9 certificeringen
Nieuw
Bergen (nh) Duinweg 1S
€ 2.495.000 k.k.

334 m2

Wonen

980 m2

Perceel

6

Kamers

Omschrijving

Exclusief wonen aan de bosrand van Bergen

Duinweg 1s, een villa waar elke dag voelt als thuiskomen.

Op een van de meest begeerde locaties van Bergen (NH), verscholen in de luwte van de duinen en direct grenzend aan het bos, ligt deze onder architectuur gebouwde vrijstaande villa. Een zeldzame combinatie van ruimte, luxe, rust en ultiem wooncomfort, op een royaal perceel van bijna 1.000 m² eigen grond.

Zodra u het elektrisch bedienbare toegangshek passeert en uw auto parkeert op de ruime oprit of in de dubbele inpandige garage, ervaart u het gevoel van exclusiviteit en privacy. Dit is wonen op niveau, verfijnd, sereen en tot in detail doordacht.

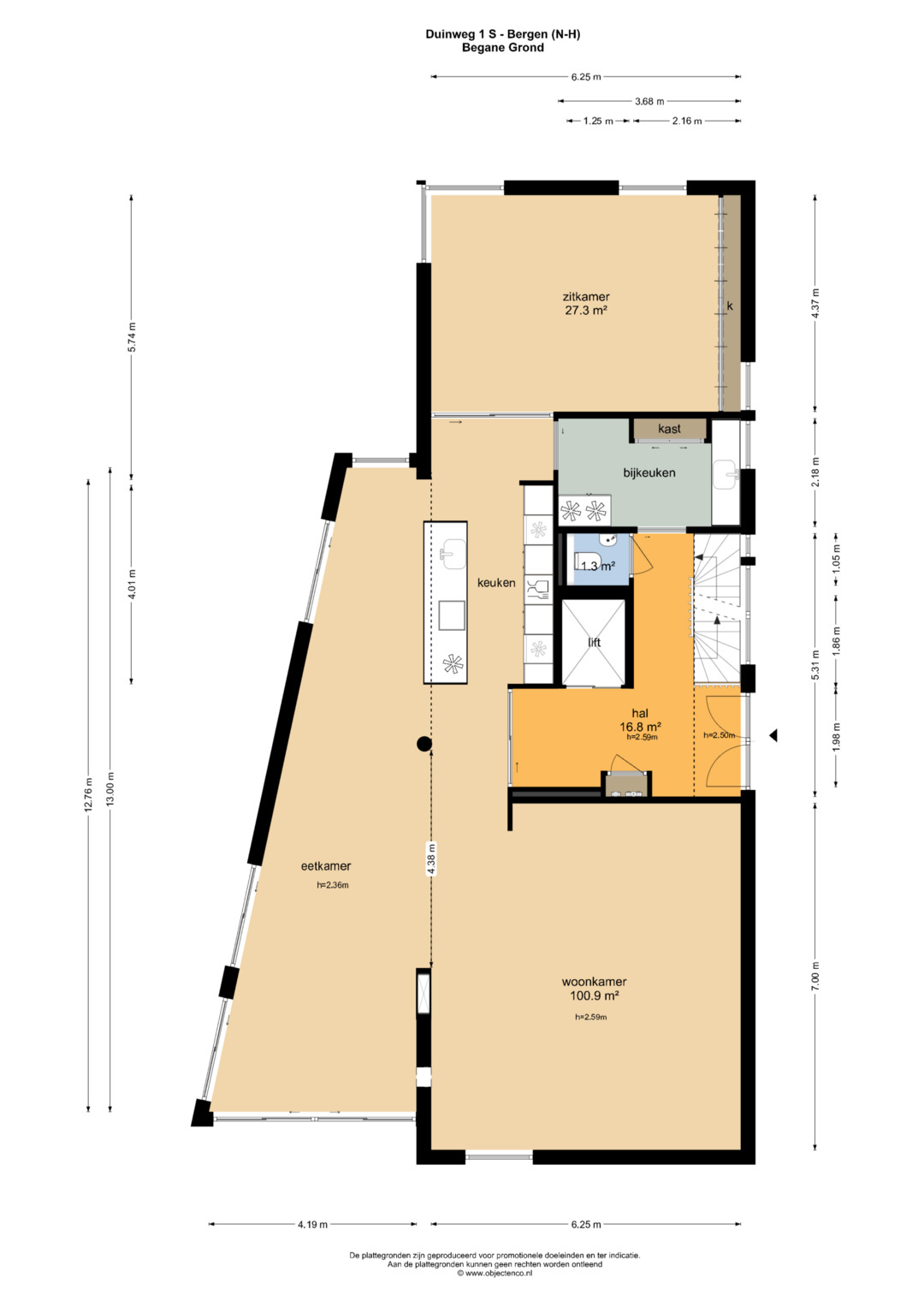
Begane grond

De villa verkeert in uitstekende staat van onderhoud en is afgewerkt met hoogwaardige materialen en stijlvol maatwerk. De royale living van circa 101 m² vormt het hart van de woning: licht, ruimtelijk en warm, met een gashaard en grote raampartijen die het buitenleven naar binnen halen. De (elektrische) schuifpuien verbinden de woonkamer moeiteloos met de fraai aangelegde tuin en diverse terrassen.

De open leefkeuken is van alle gemakken voorzien, uitgerust met luxe inbouwapparatuur en een in hoogte verstelbaar kookeiland, perfect voor zowel dagelijks comfort als het ontvangen van gasten. Aangrenzend bevindt zich een multifunctionele werk- of eetkamer van ca. 27 m², afsluitbaar met een schuifdeur, ideaal als thuiswerkplek, muziekkamer of rustige eetkamer.

De gehele begane grond is voorzien van vloerverwarming én koeling, wat in combinatie met het aardwarmtesysteem zorgt voor een aangenaam en energiezuinig binnenklimaat (energielabel A+).

Dankzij de aanwezigheid van een lift is de villa volledig levensloopbestendig.
Alle verdiepingen zijn comfortabel bereikbaar, wat deze woning niet alleen zeer aantrekkelijk maakt voor gezinnen, maar ook voor wie toekomstbestendig wil wonen zonder in te leveren op ruimte of luxe.

Eerste verdieping

Op de eerste verdieping bevinden zich drie zeer ruime slaapkamers van ca. 25 m², 23 m² en 16 m², waarvan twee met een eigen luxe badkamer. De master bedroom beschikt over een en-suite badkamer én een royale inloopkast. Alles is ontworpen met oog voor rust, comfort en privacy. Ook deze verdieping is volledig uitgerust met vloerverwarming en een stijlvolle parketvloer.

Souterrain

In het souterrain van ca. 63 m² bevinden zich fraaie, multifunctionele extra’s. Naast de verwarmde dubbele inpandige garage en een ruime wasruimte van ca. 23 m² is hier een volwaardige vierde slaapkamer gerealiseerd van ca. 21 m², ideaal als logeerkamer, kantoor of voor au pair/zorg aan huis. Daarnaast beschikt deze verdieping over een eigen wellnessgedeelte met sauna, Turks stoombad en een apart toilet. Een comfortabele, rustige omgeving waar ontspanning en praktische leefruimte naadloos samenkomen gewoon in uw eigen woning.

Overige ruimtes

Via een vlizotrap bereikt u de royale zolderberging, die maar liefst ca. 50 m² groot is en een stahoogte heeft van 1,40 m. De zolder is voorzien van twee dakramen voor voldoende daglicht. Deze ruimte biedt veel opslagmogelijkheden.

Buitenleven in alle rust

De zorgvuldig aangelegde tuin rondom de villa biedt optimale privacy en meerdere zon- en schaduwterrassen. Hier geniet u op elk moment van de dag van rust, natuur en groen. Of u nu een kop koffie drinkt onder de bomen, dineert met vrienden of simpelweg ontspant na een dag werken – dit is een buitenruimte die leeft.

Toplocatie

De ligging is uniek: aan de bosrand, op korte afstand van het gezellige centrum van Bergen met zijn winkels, restaurants en kunstgaleries. Strand en duinen van Bergen aan Zee en Schoorl zijn eenvoudig per fiets bereikbaar. Tegelijkertijd bent u uitstekend verbonden met uitvalswegen richting Alkmaar, Amsterdam en de rest van de Randstad.

Duinweg 1s is geen huis dat u bezoekt, maar een plek die u ervaart.
Een villa die alles biedt: ruimte, luxe, privacy en een uitzonderlijke ligging. Een thuis voor wie het beste zoekt, vandaag én in de toekomst.

Wilt u deze bijzondere villa zelf beleven? Wij nodigen u van harte uit voor een bezichtiging.

Bijzonderheden:
– Energielabel A+
– Zeer hoogwaardig afgewerkte Villa;
– Villa is voorzien van domotica;
– Zeer uitgebreide groepenkast;
– Alarmsysteem;
– Afgesloten inrit elektrisch bedienbaar op afstand;
– Geheel vloerverwarming met koeling;
– Aardwarmte systeem;
– Oprit met ruime parkeergelegenheid op eigen terrein;
– Slechts 15 minuten fietsen van het strand van Bergen aan zee.

Kenmerken

Prijs
€ 2.495.000 k.k.
Status
Beschikbaar
Aanvaarding
In overleg

Oppervlaktes en inhoud

Perceel
980 m2
Woonoppervlakte
334 m2
Inhoud
1.412 m3
Buitenruimte
0 m2

Bouw

Type object
Woonhuis
Soort
Villa
Type
Vrijstaande woning
Bouwjaar
2007
Dak type
Schilddak
Isolatievormen
Volledig geïsoleerd

Indeling

Aantal kamers
6
Aantal slaapkamers
3

Ligging

Ligging
Aan bosrand, Aan rustige weg, In centrum, In woonwijk, Beschutte ligging, In bosrijke omgeving

Tuin

Type
Tuin rondom
Staat
Verzorgd
Achterom
Nee

Energieverbruik

Energielabel
A+

Voorzieningen

Parkeer faciliteiten
Op eigen terrein, Op afgesloten terrein

Plattegronden

Documenten

Kaart van het Kadaster Download